首页
关于我们
解决方案
典型案例
联系我们
户型图绘制及管理系统
360°物体全景
全景播放器
虚拟现实软件平台
网站维护产品
管网计算软件
水资源管理软件
业务应急系统BES
公寓管理平台
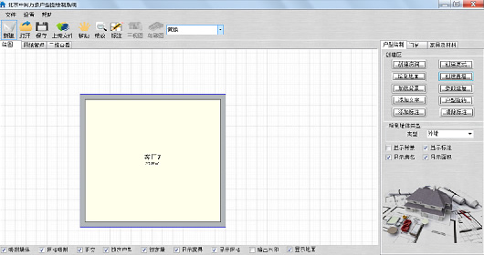
> 户型图绘制及管理系统
户型图绘制及管理系统,自动捕捉计算,自动生成地面,自动计算面积,动态生成三维房屋。
自动标注,也快手动标注
图纸管理
二维转三维
室内漫游
Copyright(C) 2012-2015 All Rights Reserved 版权所有 北京中网万象科技有限公司
京ICP备1201546